U gebruikt een verouderde internetbrowser.
We raden u aan om de meest recente internetbrowser te installeren voor de beste weergave van deze website.
Een internetbrowser die up to date is, staat ook garant voor veilig surfen.

Helaas, dit pand is verhuurd

8840 Staden

Omschrijving

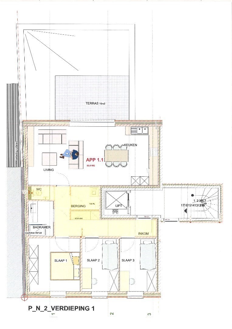
Energiezuinig nieuwbouwappartement met 3 slaapkamers en groot terras in Staden

Vlakbij het centrum van Staden, op wandelafstand van alle winkels, openbaar vervoer,... bevindt zich dit energiezuinig appartement in een kleinschalige nieuwbouwresidentie.

Het appartement omvat inkom, lichtrijke leefruimte met schuifraam dat uitgeeft op het terras (15m²), open keuken (ingericht met toestellen), bergruimte, toilet, badkamer met lavabomeubel en douche, 3 slaapkamers.

EXTRA TROEVEN:
* Carport inclusief
* Extra private bergruimte op het gelijkvloers
* Lift aanwezig in het gebouw
* Afgewerkt met kwaliteitsvolle materialen

Het appartement is voorzien van energiebesparende technieken (o.a. zonnepanelen) wat uiteraard zal zorgen voor een laag energieverbruik! (EPB dd 02/12/2022 - E-3 , score: - 6Kwh/m² jaar)

Bijkomende syndickosten: 60,00 EUR / maand.


Niet gevonden wat u zocht? Schrijf u dan vrijblijvend in op onze nieuwsbrief en blijf op de hoogte van ons recentste aanbod.
Schrijf u in
Terug naar boven
Sluit menu Image Immobiliën