U gebruikt een verouderde internetbrowser.
We raden u aan om de meest recente internetbrowser te installeren voor de beste weergave van deze website.
Een internetbrowser die up to date is, staat ook garant voor veilig surfen.

Helaas, dit pand is verkocht

8980 Passendale

Omschrijving

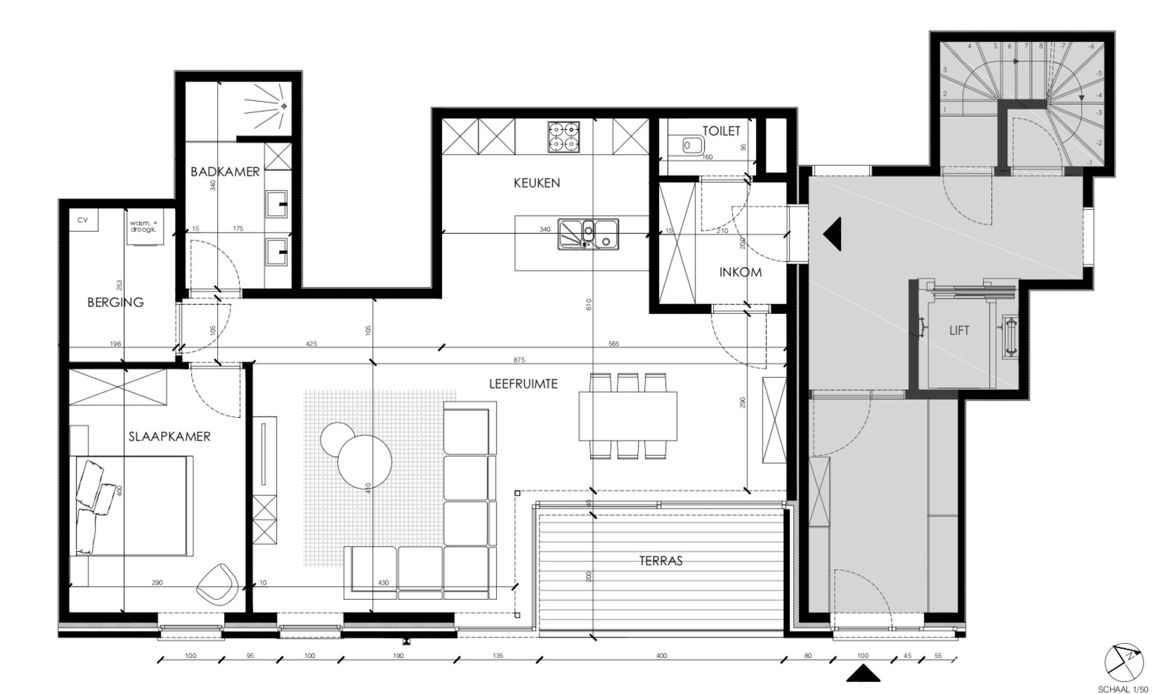
Nieuwbouwappartement met 1 slaapkamer in centrum Passendale

Aan de voorzijde van dit prachtig nieuwbouwproject, vindt u dit 1-slaapkamer appartement. Het appartement is verrassend ruim en beschikt over een heel praktische indeling! Dit appartement omvat een inkom, toilet, grote leefruimte met veel lichtinval die u tevens toegang biedt tot het terras, een open ingerichte keuken, bergruimte, badkamer en grote slaapkamer.
U heeft de mogelijkheid tot aankoop van een garage en/of staanplaats.
U kunt er tevens voor opteren om nog een extra bergruimte aan te kopen.
Verkoop onder RR/BTW. Mogelijkheid tot aankoop aan 6% BTW ipv 21% BTW bij voldoen aan de voorwaarden!! Vraag ons naar meer info.


Niet gevonden wat u zocht? Schrijf u dan vrijblijvend in op onze nieuwsbrief en blijf op de hoogte van ons recentste aanbod.
Schrijf u in
Terug naar boven
Sluit menu Image Immobiliën